


Código da candidatura: 62895
Programa de Financiamento: Investimento RE-C02-i01 Programa de Apoio ao Acesso à Habitação - 1º Direito
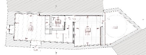
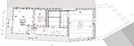
Objetivo: Aquisição de 1 imóvel devoluto e posterior reabilitação integral, para promover o alojamento a agregados em condições indignas de habitação, elegíveis ao abrigo do Decreto-lei 37/2028 de 4 junho.
Nº de Fogos: 1 T3
Valor da candidatura: 146.702,68 €
Data Prevista de Conclusão: junho 2026


