


Código da candidatura: 62832
Programa de Financiamento: Investimento RE-C02-i01 Programa de Apoio ao Acesso à Habitação - 1º Direito
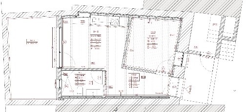
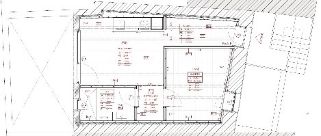
Objetivo: Aquisição de 1 imóvel e posterior reabilitação integral, para promover o alojamento a agregados em condições indignas de habitação, elegíveis ao abrigo do Decreto-lei 37/2028 de 4 junho.
Nº de Fogos: 2 T1
Valor da candidatura: 185.636,74 €
Data Prevista de Conclusão: março 2026


