


Código da candidatura: 62645
Programa de Financiamento: Investimento RE-C02-i01 Programa de Apoio ao Acesso à Habitação - 1º Direito
Objetivo: Aquisição de 1 imóvel devoluto e posterior reabilitação integral, para promover o alojamento a agregados em condições indignas de habitação, elegíveis ao abrigo do Decreto-lei 37/2028 de 4 junho.
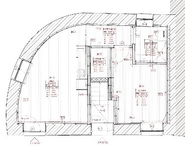
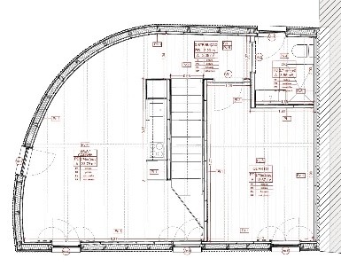
Nº de Fogos: 2 T1
Valor da candidatura: 181.841,85 €
Data Prevista de Conclusão: junho 2026


